【11月30日まで】家事動線にこだわったナチュラルカントリーの家 #ファミクロ #ランドリールーム
家事ラクな間取りの工夫に注目!

毎日の暮らしがちょっとラクになるように、帰宅から調理・洗濯・収納までを考え抜いた「家事上手な家」
木のぬくもりに包まれながら、家族が自然と笑顔になれるナチュラルカントリーの住まいです。
木のぬくもりに包まれながら、家族が自然と笑顔になれるナチュラルカントリーの住まいです。

詳しい見どころはMAPの下部でご紹介
↓ ↓ ↓
完成見学会
見どころ
木の温もりに包まれる、ナチュラルカントリーのやさしい空間
木の優しい質感とやわらかな色使いが心までほっと和ませてくれる、ナチュラルカントリーテイストのインテリア。
LDKはキッチンから全体を見渡せる形状になっており、家族とのコミュニケーションも自然に生まれるように。
リビングは屋根に合わせて天井が高くなっており、程よい開放感のある作り。木目で仕上げた天井と化粧梁が雰囲気を出しています。
ぬくもりを感じながら、家族の時間をゆったりと楽しめる空間になりました。
※画像は完成イメージです
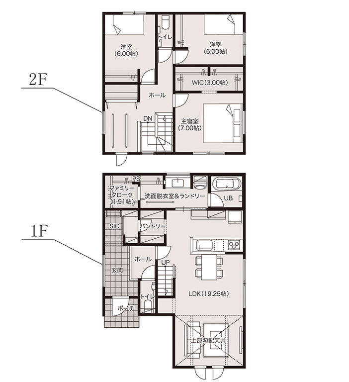
毎日の家事がスムーズに!“家事上手”になる動線設計
料理・洗濯・物干し・収納。
日々の家事に伴う移動距離を最短にした、家事ラク動線にこだわりました。
注文住宅ならではの、住まう家族に寄り添った動線づくり。
家事のマルチタスクがはかどり、収納不足の心配も解消しました。
共働きや子育て中のご家庭でも、家事の負担を軽減し“ゆとり時間”を増やす暮らしを実現します。
光熱費や災害にも安心、蓄電池搭載の家
トリプルガラスのサッシを採用した高断熱仕様のお家に、大容量ソーラーパネルと蓄電池を搭載!
余りある発電量で、電気代が気になる季節でも気兼ねなく快適に過ごせます。
また、余った電気は蓄電池に充電。夜間の電力消費や万が一の災害時に備える安心のお家です。
【PLAN DATA】
1F床面積/ 62.93㎡(19.04坪)
2F床面積/ 52.93㎡(16.01坪)
延床面積/115.92㎡(35.07坪)
施工面積/117.57㎡(35.56坪)
南玄関・3LDK+ファミリークローク
施主様のこだわりを追体験!
リアルな注文住宅の実例をみながら、新生活をイメージしてみませんか?
土地の選び方や資金、間取りの組み立て方など、経験豊富なスタッフがご案内します♪
お知らせ
⭐️アマゾンギフトカード10,000円分プレゼント!⭐️

【注意事項】
- ※コンチネンタルホームに初めて来場される方が対象です。
- ※初回来場時に5,000円分、2回目のご来店(事前審査申し込み時)に5,000円分お渡しさせて頂きます。
- ※お一人でご来店の場合は2回目ご来店(事前審査申し込み時)に進呈いたします。
- ※ご来場プレゼントは1組様につき1点の進呈となります。
- ※新築住宅をご検討/身分証明書をご提示頂ける方に限ります。
- ※詳しくはスタッフまでお問い合わせください。
イベント概要
| タイトル | 【11月30日まで】家事動線にこだわったナチュラルカントリーの家 #ファミクロ #ランドリールーム |
|---|---|
| 開催日時 |
2025年11月22日(土)〜2025年11月30日(日) 10:00〜17:00 ※日によって異なります |
| 開催場所 | 栃木県塩谷郡高根沢町宝積寺 |
| 会社ホームページ | https://www.contihome.com |
